TOP PROJECT: Waterfall Public Transport Facility
The Clay Brick Association of South Africa congratulates Architects Sean Pillan, Jonathan Leibowitz and Lance Mac Bean of Empowered Spaces Architects on their innovative and attractive solution to public transport servicing facilities. The Five-Star Green-rated taxi holding facility is a superb use of clay brick. Safe & secure brick masonry ensures a lasting legacy for social infrastructure that is energy efficient, with excellent noise insulation & maximum fire ratings.
Project Summary
- Architect and Principle Agent: Empowered Spaces Architects
- Structural and Civil Engineers:DG Consulting Engineers
- Landscape Architects: Daniel Rebel Landscape Architects
- Green Consultant: Solid Green Consulting
- Electrical Consultant:Claassen Auret (Pty) Ltd
- Contractor: Akhane Construction
- Client: Attacq
- Developer: Atterbury
The brief called for robust buildings to house a mixture of spaces that the taxi drivers could engage with. Tying in with its context, the architecture's core materials are sheeting, steel and face brick. The spaces are divided into a variety of zones, each with a specific function focusing on private and semi-private areas. Buildings are orientated in such a way to form a central courtyard where people can gather in large groups or where managers can address the drivers as a whole. The spaces have constant visual access over one another, allowing for a very secure space.
The taxi holding facility is located on the east side of the N3, adjacent to the quarry on Waterfall Farm, surrounded by an industrial outcrop of warehouses and offices. The site, which was previously used as a dump site with no existing structures, is a well fitted area of 1189m x 98m in size, and slopes gently away from the highway. The facility will provide a base for the various Taxi Associations operating in the area, to manage their routes.
The ablution block services the entire facility and there is also a shaded rest area for taxi drivers to relax in.The intention was to create a comfortable environment for taxi drivers to congregate in during the day before heading out on their designated routes to facilitate passengers commuting in and around the city.
The Taxi Associations have embraced the design of their new facility, this is seen by the degree to which the space is being utilized. It can only be hoped that this uniquely diverse setting allows the drivers to engage with one another in a progressive manner moving forward.
The bricks for the project were proudly supplied by CBA Member Corobrik.
Are you an architect, contractor or client with an exiciting clay brick project? The Clay Brick Association of South Africa honours clay masonry Top Projects that show innovation, functionality, resource-efficiency, sustainability and a good use of clay brick (exposed or structural). The clay bricks do not need to be sourced form a CBA member.
If YOUR project is a Top Project, please email an overview of your project and a few low res photographs to web@claybrick.org.
More About the Project
Sustainability features
- The design with natural ventilation eliminates the need for vertical circulation and water-heating facilities,
- Clay brick walling is dense with a high CR value, which saves energy in heating and cooling.
- Water-efficient sanitary fittings have been incorporated.
- Water and energy consumption rare tracked using energy and water sub-meters and digital reporting
- A dedicated refuse area is provided with educational signage to encourage reuse and recycling.
- Operational energy use has been minimised with a photovoltaic (PV) installation capable of producing 6177 kWh of electricity, resulting in a net positive buildingrequiring no electricity from the grid.Internal lights are fitted with occupancy sensors
- Hardscape surfaces and roofing material minimise urban heat-island effects .
- Exposed brick is low maintainance and reduces the carbon debt associated with continually refurbishing plaster and paint.
Rest Area
Once drivers have parked and make their way to the courtyard,they pass through the rest area which acts as a buffer zone between the exit road and courtyard. These four planters attempt to soften the hard edges around the facility, whilst providing a partially shaded area for drivers to sit under and relax. The rest area opens itself up it the south side of the site, and due to the lay of the land, drivers can enjoy views overlooking Johannesburg. In addition to the steel trees providing shade, solar panels on the sheeting have been used to generate power to USB ported charging stations, allowing drivers to charge various devices.
Offices
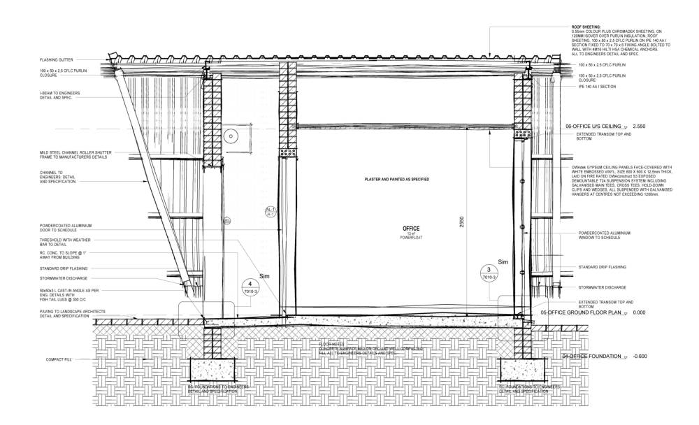
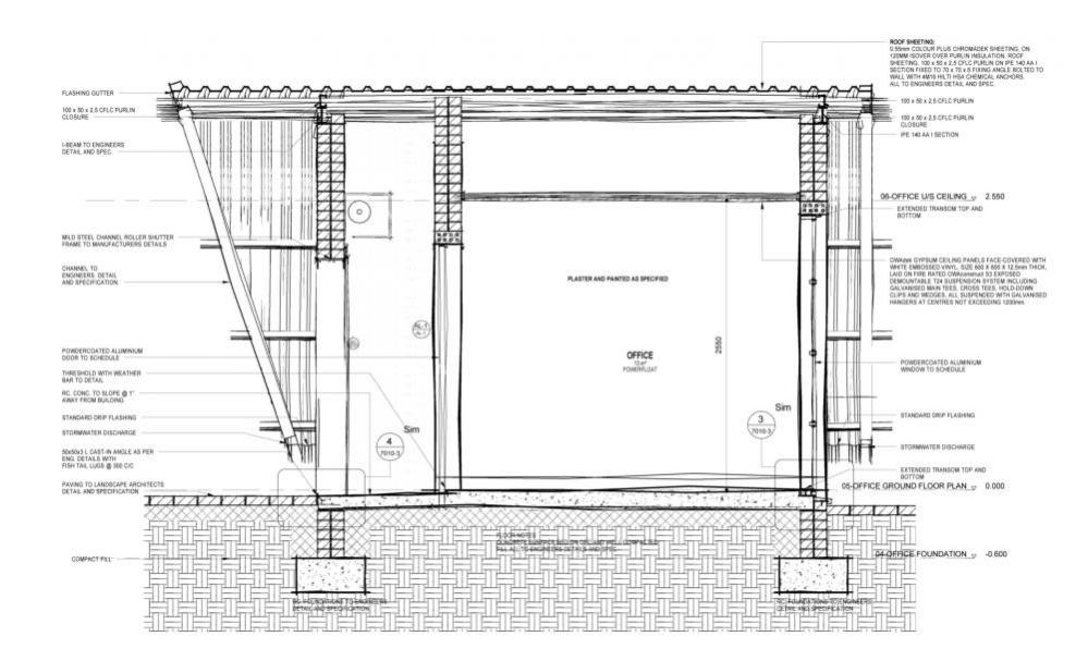
Overlooking the courtyard, sit four office spaces, equally designed serve as a base for taxi association managers to facilitate their organisations and drivers in their day to day operations. Roller shutter doors serve as primary security for each space and secondary glazing acts a threshold for the office.Sheeting blankets and wraps the face brick, tucking it neatly away under deep overhangs where by managers have the option of working indoors or outdoors. Screen walls between the offices are used for signage to post notices for drivers and to visually focus your attention across the courtyard.
Canteen
The Canteen space allows for community entrepreneurs to set up and inhabit micro shops, selling food to the off-duty drivers. The Canteen building acts as a barrier to the adjacent site with six shops facing onto thecourtyard, enticing patrons with smells of freshly cooked meals. Each shop allows the user to display their goods and prepare meals for the drivers using gas as their primary means for cooking. The back of house area creates anintimate space for shop owners, one separate from the hustle and bustle of the activity in the courtyard.It allows the workers the chance to relax and communicate with one another. Drivers can sit back and eat their meals under a large canopy located in front of the canteen. The three main supports span outwards providing a large shaded spacemaximizing the usable area.
Refuse
The refuse and recycling/sorting area will become a drop off node for local scrap collectors.This space is linked to a site manager’s office, where day to day operations of the site are overseen. The refuse area sits 850mm lower on the site compared to the rest of the buildings. This gives the opportunity to access the skip area from a higher level making it easier for the user to discharge their rubbish, whileallowing easy access for the truck collecting the skip. The large refuse area facilitates the sorting process, allowing recyclers to pick and sort through materials in a secure area, out of sight from taxi drivers andthe street.The sitemanager’s office overlooks the courtyard and the activity during the day, while provision for additional offices has been made to allow for future growth of the facility.
Ablutions
The ablutions are naturally ventilated spaces achieved via high level ClearVu panels, which also provide natural lighting and in turn reduce the power consumption requiredby the space. The solar panels that cover the ablution block's roof, not onlyprovide power to the facility, but also store power in a battery bank located at the back of the structure. Through smart software it is possible to manageand record the day to day usage.
Recreation Space
A Proposed Recreational Space for the taxi drivers is being processed. It will be located on the south side of the site, and will provide a place for drivers to relax or exercise during downtime. The natural slope on the sitewill be used to create a partially shaded seating area overlooking two mini football fields which is, the main view looking towards Johannesburg. In addition to the mini football fields, an outdoor gym area is proposed for drivers to exercise and stay in safe.













